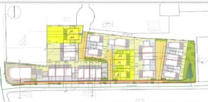
BERTRANGE – Rue des Romains – Terrains à bâtir


Terrain à bâtir à vendre à BERTRANGE, rue des Romains de 2.64 à 4.22 ares.
Infrastructures déjà réalisées et terrains viabilisés.

Les terrains sont vendus SANS contrat de construction.

Informations Tel: 26 29 68 08 ou info@calteux.lu

____________

Building land for sale in Bertrange, Rue des Romains, with plot sizes from 2.64 to 4.22 ares.
Infrastructure works are completed and the plots are fully serviced.

The plots are sold FREE from any construction contract

ALL POSTS
cal
ALL POSTS
cal