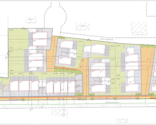
Lotissements et terrains Lotissement BERTRANGE – Rue des Romains En plein coeur de Bertrange, à seulement quelques minutes du centre commercial Belle Etoile, à l'intersection entre la rue des... Lotissement BERTRANGE – Rue des Romains – Maisons à coûts modérés ***CES CONSTRUCTIONS SONT DESTINEES EXCLUSIVEMENT A DES PERSONNES PHYSIQUES ELIGIBLES A L’OCTROI D’UNE PRIME DE CONSTRUCTION OU D’ACQUISITION DE LA... Lotissement BERTRANGE – Rue des Romains – Terrains à bâtir Terrain à bâtir à vendre à BERTRANGE, rue des Romains de 2.64 à 4.22 ares. Infrastructures déjà réalisées et terrains... Lotissement BETTENDORF – Fraeschegaass A proximité de Diekirch, dans une rue calme de commune de Bettendorf, à deux pas du cours d'eau de la... Lotissement BLASCHETTE – Rue Neuve Deux maisons bi-familiales à vendre à Blaschette. Plus d'informations au +352 26 29 68 08. Situation Blaschette est un village... Lotissement ERPELDANGE – Lotissement In der mittelsten Gewaan Dans un nouveau lotissement à Erpeldange-sur-Sûre, commune située entre Ettelbruck et Diekirch, plusieurs maisons unifamiliales à vendre. Situation Le lotissement... Lotissement FILSDORF – Lëtzebuergerstrooss - Maisons unifamiliales isolées, jumelées, jumelées/garage et en bande - Terrains de 2,94 à 8,53 ares avec et/ou sans contrat... Lotissement GROSBOUS – Rue de Mersch A Grosbous, commune tranquille voisine de Redange et Mersch, projet de construction de 4 maisons. SITUATION À environ 35 km... Lotissement HAUTCHARAGE – Lotissement Cité Grand Duc Jean Dans un tout nouveau lotissement au coeur de Hautcharage, terrains à vendre avec contrat de construction. Plus d'informations au +352... Lotissement HELLANGE – Iwwert der Sauerwiss Dans un nouveau lotissement à Hellange, plusieurs maisons unifamiliales. Lotissement KEISPELT – Rue de Kehlen A Keispelt, dans un nouveau lotissement, 3 maisons unifamiliales à construire en vente. Appartenant à la commune de Kehlen, le... Lotissement MERSCH – 5, rue Dr Fernand Schwachtgen Terrain à bâtir à vendre – Situation privilégiée à Mersch 5, rue Dr Fernand Schwachtgen, L-7570 Mersch Surface : 8,55... Lotissement MERSCH – Lotissement Rue Bouvart Situé rue Adolphe Bouvart à Mersch, ce nouveau lotissement de maisons unifamiliales bénéficie d’un emplacement particulièrement central, à proximité immédiate... Lotissement MONDERCANGE – Lotissement Kummerchhéicht Situé au cœur de la commune de Mondercange, à l’angle de la rue de Pontpierre et de la rue de... Lotissement SENNINGERBERG – 2 Binnewee Situés dans l’un des quartiers les plus prisés du Grand-Duché, 2 magnifiques terrains de respectivement 7,53 et 8,12 ares vous... Lotissement SPRINKANGE – Lotissement Op Eizemuer Dans le nouveau lotissement "Op Eizemuer" situé à Sprinkrange, maisons unifamiliales à vendre sur terrains compris entre 4.61 et 4,94... Lotissement STEGEN – Lotissement Nic Meiter / Thiergart SITUATION Stegen est un petit village calme à l’est du Luxembourg qui appartient à la commune de la Vallée de...